WADI 800 - RESIDENCE

Yesterday Echoes, Today Ripples

Client | TSM
Location | Beirut, Lebanon
Area | 400 sqm
Date of Completion | September 2017
Team | Tessa Sakhi
General Contractor | Antoine Mouawad
Sub-Contractor | Joe Habchy
Landscape | Roots & So Green
Photos | Ieva Saudargaite, Guillaume de Laubier

The renovation of this 1930's Lebanese house was to respectfully maintain its traditional Middle Eastern aspects while adapting it to a contemporary lifestyle, thus resulting into a harmonious culmination of heritage meets modernity.

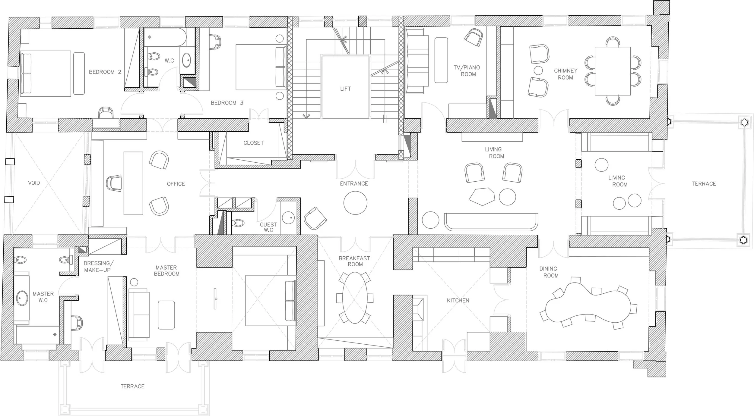
The residence is entirely renovated and divided into two entities: the gallery space, the central axis of the house with soaring 5.5.m ceiling heights, gives a visual openness from one side, where inhabits all the living and common areas for family and friends gatherings, while the other inhabits the private areas and bedrooms. It is dressed in white and embodies the communal activities of the house with two living areas communicating through a triple-arch opening and indoor plants, extending further into the terrace. Distributing onto floor-to-ceiling carved wooden doors, the main space invites its inhabitants to 6 colorful peripheral rooms;

following the resident's desires, each room is carefully designed with a different ambiance, style and function to satisfy their lifestyle, moods, and needs; midnight blue for the TV room, sage green for the office, cinder rose for the dining room, steel blue for the chimney room, crimson red for the breakfast room, and grass green for the kitchen.

The furniture is entirely custom-designed; they rest as art pieces and subtly translates the function of each room. Optimizing the natural light, a warm palette integrates rich layers of textures and colors; walnut and oak wood, oxidized brass and copper, patina walls, large arched windows and doors with arabesque motifs, traditional mousharabiya carved in wood latticework, Italian calacatta marble floors in the communal spaces and ceramic traditional tiles in the private areas.

Previous
Previous

VENICE 2591 - Residence

Next
Next

VENICE 2602 - Apartment